Quadrilocale in vendita

Crema, Via Dosso Morone
€ 300.000
4 locali 4 locali
250 Mq 250 Mq
2 bagni 2 bagni

Quadrilocale in vendita

Crema, Via Dosso Morone

Descrizione annuncio

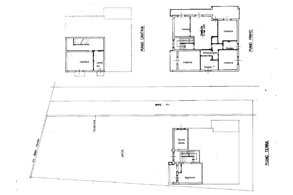
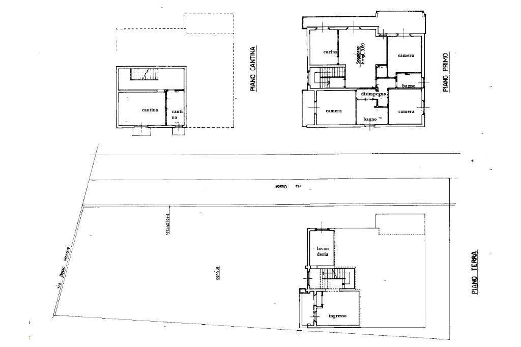
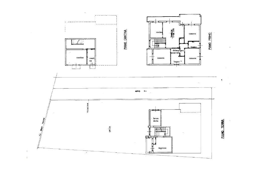
Nel comune di Crema, nel tranquillo quartiere di Castelnuovo, è disponibile appartamento in villa indipendente, quadrilocale, che offre ampi spazi e comfort. Questa proprietà di 250 mq, ristrutturata nel 1994 con finiture di pregio come il parquet in tutta la superficie, serramenti in legno doppio vetro, ceramiche nei bagni e nella zona cooking. L'abitazione è composta da un ingresso al piano terra con ampio atrio, spaziosa lavanderia e scala centrale privata in marmo che ci porta al piano interrato nella cantina e al piano superiore nel quadrilocale. Quest'ultimo si compone di signorile ingresso con accesso alla sala da pranzo e alla zona living, cucina abitabile, entrambi con accesso al balcone che si sviluppa in un comodo terrazzo. Dalla sala pranzo si accede ad un disimpegno di generose metrature con ingresso alle 3 camere matrimoniali, ai doppi servizi, il primo con doccia ed il secondo con vasca e infine al ripostiglio. Completano la proprietà un giardino esclusivo, ideale per chi ama il verde e tre posti auto, assicurando comodità per i veicoli. L'aria condizionata assicura comfort in ogni stagione.

LE ORIGINI DI CREMA. Situata nella bassa Pianura Padana, poco oltre la linea della risorgive, è il centro principale della provincia dopo il capoluogo Cremona e dà il proprio nome a tutta la parte settentrionale del territorio provinciale: il Cremasco. Le origini di Crema sono legate all'invasione longobarda del VI secolo il nome deriva probabilmente dal termine longobardo 'Crem' che significa 'altura'. Secondo la tradizione, la fondazione della città risalirebbe al 15 agosto 570 quando, di fronte alla minaccia rappresentata dall'invasione longobarda, gli abitanti della zona trovarono rifugio nella parte più elevata dell''isola della mosa', approntandola a difesa sotto la giuda prima di Cremete, conte di Palazzo, e poi di Fulcherio. Da questi due personaggi deriverebbero i toponimi Crema e Insula Fulcheria. Secondo altre fonti la sua fondazione risale al IV secolo quando Milano era capitale dell'Impero Romano d'Occidente. Un'altra versione invece parla di un più antico insediamento Celtico o Etrusco. La città è punto di riferimento con forti caratteristiche urbane per tutta l'area agricola circostante.

Mostra tutto

Nelle vicinanze

Trasporto pubblico Trasporto pubblico
stazione di Crema
stazione di Crema
1,1 Km
stazione di Madignano
stazione di Madignano
2,8 Km
Trasporto pubblico
1,1 Km
MioBus Crema - ARRIVO A CHIAMATA
MioBus Crema - ARRIVO A CHIAMATA
1,9 Km
Ricariche auto elettriche Ricariche auto elettriche
Via Piacenza
1,4 Km
EnerCoop Centro Commerciale Gran Rondò
2,8 Km
Scuole Scuole
Liceo Scientifico Leonardo da Vinci
900 m
Liceo Classico Alessandro Racchetti
920 m
Fondazione "Manziana"
1,0 Km
Scuola di Musica Claudio Monteverdi
1,1 Km
Scuola Primaria Borgo San Pietro
1,2 Km
Farmacia Farmacia
Dott. Vergine
550 m
dott. Bertolini
880 m
Conte Negri
1,1 Km
Farmacia Granata
1,2 Km
Farmacia
1,3 Km
Ospedali Ospedali
Ospedale Maggiore di Crema
1,8 Km
Supermercati Supermercati
MD
970 m
Simply
1,2 Km
Simply Market
1,3 Km
Lekkerland
1,6 Km
Punto Zero
1,7 Km
Negozi Negozi
Dossena
770 m
Franca
910 m
Pelle e cuoio
930 m
Giòlina
940 m
Negozi
970 m
Bar Bar
Bar
560 m
Cafè 51
690 m
Babar
690 m
La Sangiovesa
750 m
Babaluba
820 m
Ristoranti Ristoranti
Il Circolino
210 m
Haki
680 m
Pata Negra
750 m
Trattoria Porta Serio
820 m
Bosco
890 m
Mostra tutto

Caratteristiche

Rif.:
61138899
Piano:
1 di 1 (ultimo Piano)
Posti auto:
3
Balconi:
1
Terrazzi:
1
Camere da letto:
3
Mostra tutto
Prezzo Prezzo
€ 300.000
Prezzo box Prezzo box
€ 30.000
Rata mutuo Rata mutuo
€ 1.398 / mese
Spese annue Spese annue
€ 1.000
Proponi il tuo prezzoProponi il tuo prezzo
Immobile valutato con T·Valuta

Classe Energetica

F
F
F
F
F
F
F
F
F
EP globale non rinnovabile:
300.07 kW h/m² anno
EP globale rinnovabile:
300.00 kW h/m² anno
EP invernale del fabbricato:
EP estiva del fabbricato:
Anno di costruzione:
1994
Riscaldamento:
Autonomo
Tipo impianto:
A radiatori
Tipo alimentazione:
Metano

Ti interessa visionare l'immobile?

Fissa un appuntamento  Fissa un appuntamento

Richiedi informazioni

Clicca su Leggi per aprire l'informativa
* Questi campi sono obbligatori

Calcola il tuo mutuo

Semplice e senza impegno
Anticipo

( % )
Mutuo

( % )

pochi semplici passi

inserisci i tuoi dati
Questionario completato
Grazie per aver richiesto un appuntamento senza impegno con un nostro Consulente del Credito e Assicurativo.

Hai inserito correttamente tutti i dati necessari e a breve riceverai una e-mail con un link da convalidare per inviare i tuoi dati.
Affiliato
Tecnocrema Srl
Via Cavour, 10/12 26013 Crema (CR)

Il nostro staff


  • Claudio Pezzotti
    Affiliato

  • Elena Cagnana
    Collaboratrice

  • Francesca Ceruti
    Coordinatrice

  • Nikla Da Ros
    Responsabile

  • Erika Pacchioni
    Collaboratrice
Via Cavour, 10/12 26013 Crema (CR)
Zona: Centro Nord-San Bernardino-Castelnuovo-Crema nuova-San Carlo-Santa Maria
Mostra su mappa
Orari: Da Lunedì al Venerdì dalle ore 8.30 alle 12.30 e alle 14.30 alle 20.00, sabato chiusura alle 18.00. Domenica su appuntamento.
Affiliato
Tecnocrema Srl
Via Cavour, 10/12 26013 Crema (CR)

2025 Tecnocasa Franchising S.p.A. - P. IVA 08365160152 - Via Monte Bianco 60/A 20089 Rozzano (MI). Ogni agenzia ha un proprio titolare ed è autonoma. Privacy policy | Policy utilizzo | Cookie policy