Trilocale in vendita

Crema, Via Cavalli
€ 168.000
3 locali 3 locali
95 Mq 95 Mq
1 bagno 1 bagno

Trilocale in vendita

Crema, Via Cavalli

Descrizione annuncio

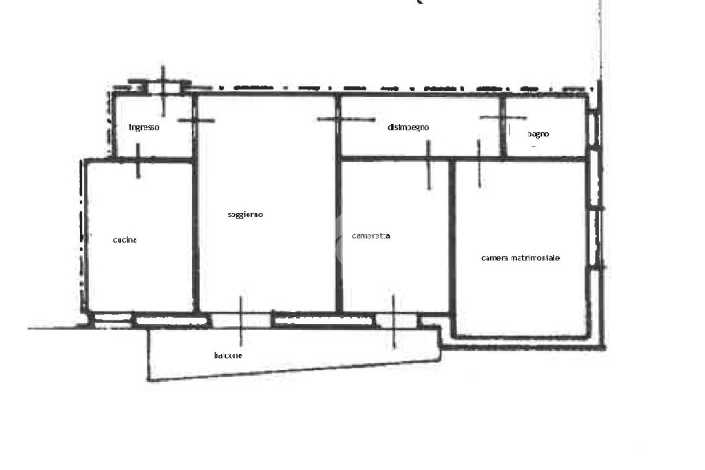
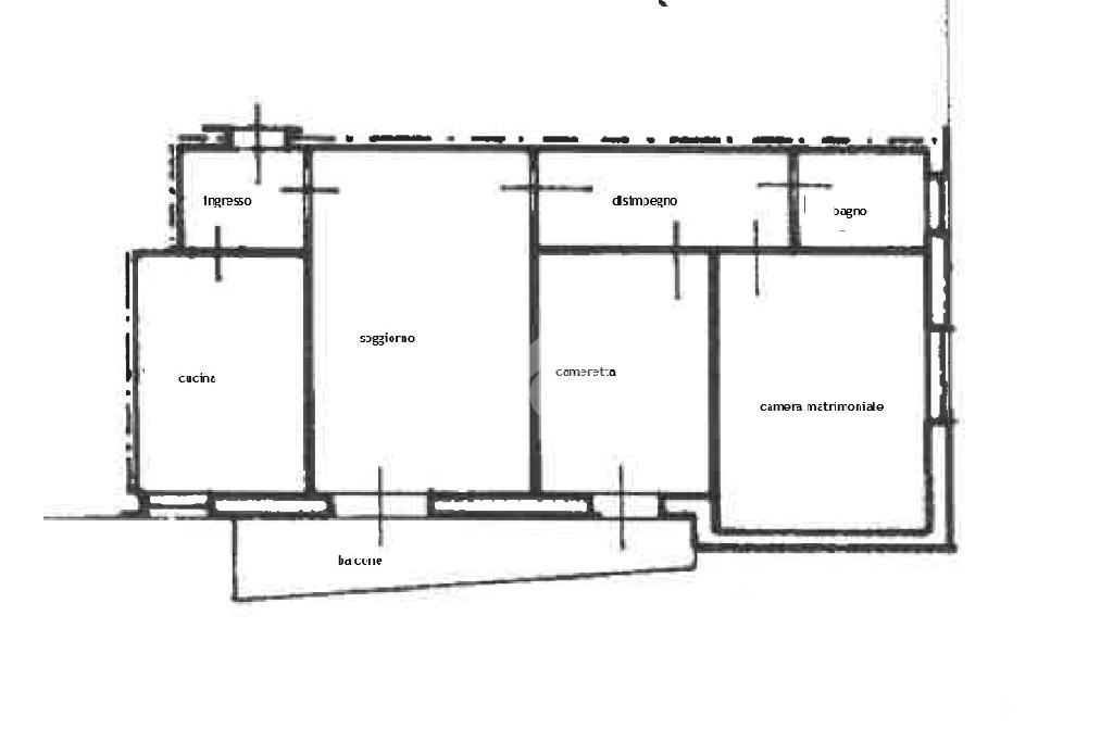
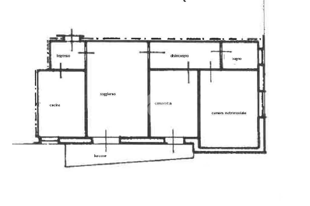
Nel cuore del comune di Crema, proponiamo un ampio trilocale di 95 mq, situato all'ultimo piano di una palazzina di 4. L'immobile COMPLETAMENTE RISTRUTTURATO offre spazi ben distribuiti e funzionali. L'ingresso accoglie in un ambiente curato, conducendo alla cucina abitabile, ideale per chi ama cucinare e condividere momenti conviviali. Il luminoso soggiorno è perfetto per il relax e l'intrattenimento. La zona notte comprende una camera matrimoniale e una camera doppia, entrambe spaziose e confortevoli. Un disimpegno collega le stanze al bagno, dotato di doccia. Il balcone offre uno spazio esterno per godere di momenti all'aria aperta. L'appartamento è dotato di condizionatore per garantire comfort in ogni stagione. Completano la proprietà un box singolo e una cantina che offrono ulteriore spazio per le esigenze quotidiane. L'immobile viene consegnato completamente arredato come da foto. La palazzina esternamente ha beneficiato della ristrutturazione della facciata ed è stato rifatto compeltamente il tetto con materiali all'avanguardia.

LE ORIGINI DI CREMA. Situata nella bassa Pianura Padana, poco oltre la linea della risorgive, è il centro principale della provincia dopo il capoluogo Cremona e dà il proprio nome a tutta la parte settentrionale del territorio provinciale: il Cremasco. Le origini di Crema sono legate all'invasione longobarda del VI secolo il nome deriva probabilmente dal termine longobardo 'Crem' che significa 'altura'. Secondo la tradizione, la fondazione della città risalirebbe al 15 agosto 570 quando, di fronte alla minaccia rappresentata dall'invasione longobarda, gli abitanti della zona trovarono rifugio nella parte più elevata dell''isola della mosa', approntandola a difesa sotto la giuda prima di Cremete, conte di Palazzo, e poi di Fulcherio. Da questi due personaggi deriverebbero i toponimi Crema e Insula Fulcheria. Secondo altre fonti la sua fondazione risale al IV secolo quando Milano era capitale dell'Impero Romano d'Occidente. Un'altra versione invece parla di un più antico insediamento Celtico o Etrusco. La città è punto di riferimento con forti caratteristiche urbane per tutta l'area agricola circostante.

Mostra tutto

Nelle vicinanze

Trasporto pubblico Trasporto pubblico
stazione di Crema
stazione di Crema
1,1 Km
Trasporto pubblico
930 m
De Gasperi SUD
De Gasperi SUD
1,3 Km
Ricariche auto elettriche Ricariche auto elettriche
EnerCoop Centro Commerciale Gran Rondò
1,6 Km
Via Piacenza
1,9 Km
Scuole Scuole
Dipartimento di Informatica - Sede di Crema
650 m
Scuola Primaria  "Braguti"
660 m
Scuole
770 m
Scuola Primaria Borgo San Pietro
780 m
ISPE parrucchieri
880 m
Farmacia Farmacia
Farmacia
470 m
Farmacia Bruttomesso
630 m
Farmacia Granata
920 m
Parafarmacia Crispi
1,0 Km
dott. Bertolini
1,1 Km
Ospedali Ospedali
Ospedale Maggiore di Crema
1,7 Km
Supermercati Supermercati
Supermercati
320 m
Famila
330 m
Punto Zero
1,0 Km
LD Market
1,0 Km
Lekkerland
1,0 Km
Negozi Negozi
L'Intimo
560 m
Marazzi
620 m
Setaccio
630 m
Panetteria Marazzi
670 m
Bufalo
680 m
Bar Bar
Bar
220 m
Sottovento
390 m
Sombrero
400 m
Arci
430 m
30 e Lode
490 m
Ristoranti Ristoranti
Porta Nova
440 m
Santa Lucia
480 m
Mangiarsano
810 m
La Villetta
840 m
Le comari
870 m
Mostra tutto

Caratteristiche

Rif.:
61113986
Piano:
3 di 3 con ascensore (Piano alto)
Box:
1
Balconi:
1
Camere da letto:
2
Arredamento:
Completo
Mostra tutto
Prezzo Prezzo
€ 168.000
Rata mutuo Rata mutuo
€ 774 / mese
Spese annue Spese annue
€ 1.800
Proponi il tuo prezzoProponi il tuo prezzo
Immobile valutato con T·Valuta

Classe Energetica

F
F
F
F
F
F
F
F
F
EP globale non rinnovabile:
254.05 kW h/m² anno
EP globale rinnovabile:
254.05 kW h/m² anno
EP invernale del fabbricato:
EP estiva del fabbricato:
Anno di costruzione:
1967
Riscaldamento:
Centralizzato
Tipo impianto:
A radiatori
Tipo alimentazione:
Metano

Ti interessa visionare l'immobile?

Fissa un appuntamento  Fissa un appuntamento

Richiedi informazioni

* Questi campi sono obbligatori

Calcola il tuo mutuo

Semplice e senza impegno
Anticipo

( % )
Mutuo

( % )

pochi semplici passi

inserisci i tuoi dati
Questionario completato
Grazie per aver richiesto un appuntamento senza impegno con un nostro Consulente del Credito e Assicurativo.

Hai inserito correttamente tutti i dati necessari e a breve riceverai una e-mail con un link da convalidare per inviare i tuoi dati.
Affiliato
Tecnocrema Srl
Via Cavour, 10/12 26013 Crema (CR)

Il nostro staff


  • Claudio Pezzotti
    Affiliato

  • Elena Cagnana
    Collaboratrice

  • Francesca Ceruti
    Coordinatrice

  • Nikla Da Ros
    Responsabile

  • Erika Pacchioni
    Collaboratrice
Via Cavour, 10/12 26013 Crema (CR)
Zona: Centro Nord-San Bernardino-Castelnuovo-Crema nuova-San Carlo-Santa Maria
Mostra su mappa
Orari: Da Lunedì al Venerdì dalle ore 8.30 alle 12.30 e alle 14.30 alle 20.00, sabato chiusura alle 18.00. Domenica su appuntamento.
Affiliato
Tecnocrema Srl
Via Cavour, 10/12 26013 Crema (CR)

2025 Tecnocasa Franchising S.p.A. - P. IVA 08365160152 - Via Monte Bianco 60/A 20089 Rozzano (MI). Ogni agenzia ha un proprio titolare ed è autonoma. Privacy policy | Policy utilizzo | Cookie policy